加药装置是一个智能化、自动化、一体化的絮凝剂溶配及投加装置。该装置能连续配制一定浓度的絮凝剂溶液并二次稀释后进行连续投加。主要应用于市政水处理等使用高分子絮凝剂溶液的场合。

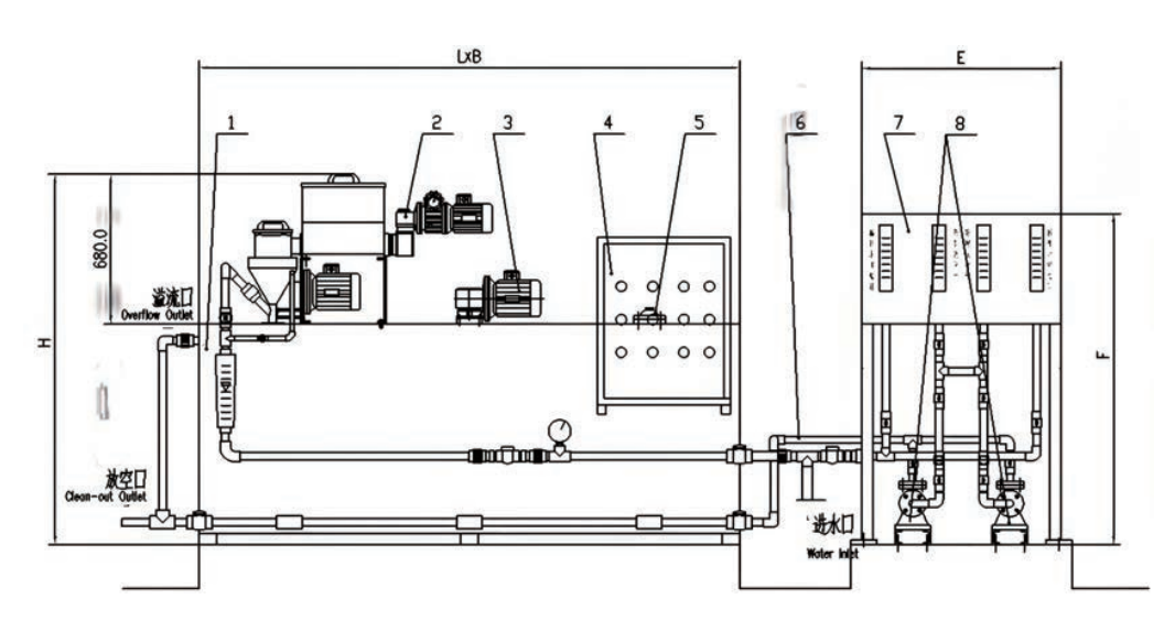
1.溶药箱 2.干粉投加系统 3.搅拌系统 4.电控箱 5.液位仪 6.管路系统 7.在线稀释装置 8.投加泵
产品简介
加药装置是一个智能化、自动化、一体化的絮凝剂溶配及投加装置。该装置能连续配制一定浓度的絮凝剂溶液并二次稀释后进行连续投加。主要应用于市政水处理等使用高分子絮凝剂溶液的场合。

1.溶药箱 2.干粉投加系统 3.搅拌系统 4.电控箱 5.液位仪 6.管路系统 7.在线稀释装置 8.投加泵
核心优势
材质过硬
主要零部件采用不锈钢材质,耐腐蚀性能好,美观
设计独特
搅拌器采用特殊设计的浆叶结构药剂溶解均匀
安装方便
采用三槽溢流式溶液操作系统,设备结构简单、体积小
自由调配
配合给水流量的变化,随意配制浓度为0.1%~0.5%的溶液
环境友好
预混器加速干粉絮凝剂的溶解,防止干粉漂浮
自动化程度高
系统由PLC控制,运行可靠,操作简便
工作原理
高分子絮凝剂由干粉投加系统的螺旋推进器送到干粉预混合系统里,在干粉预混系统内与旋流溶解水初步融合,浸湿的粉料和溶解水一起进入溶解槽内,按一定浓度进行配制。配制好的溶液通过溢流口进入熟化槽,熟化后再进入储存槽;然后经过二次稀释与加药点管道连接。当储存槽液位处于高液位时,配药过程自动停止;当溶液下降到低液位时,重新自动启动配药。